Description
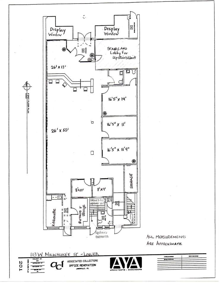
Directly across from the Children's Museum, the main space at 113 W. Milwaukee St. is available for rent beginning on April 1, 2026. The space has 3,800 square feet available. Large reception area with several rooms/offices, kitchen, bathrooms. Some offices are not load bearing walls and they can be removed to open it up for a large spacious room.
-
0BEDS
-
0.11ACRES
-
0BATHS
-
01/2 BATHS
-
8,440SQFT
-
$4$/SQFT
School Ratings & Info
Description
Directly across from the Children's Museum, the main space at 113 W. Milwaukee St. is available for rent beginning on April 1, 2026. The space has 3,800 square feet available. Large reception area with several rooms/offices, kitchen, bathrooms. Some offices are not load bearing walls and they can be removed to open it up for a large spacious room.
© 2026 South Central Wisconsin MLS Corporation. All rights reserved. IDX information is provided exclusively for consumers' personal, non-commercial use and may not be used for any purpose other than to identify prospective properties consumers may be interested in purchasing. Information is deemed reliable but is not guaranteed accurate by the MLS or Klodowski Real Estate. Data last updated: 2026-04-11T22:41:34.233.
