Description
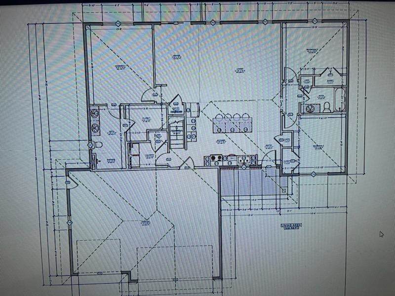
Expected completion date 3-1-25. new 4 bed, 3 bath home currently under construction in the quiet, highly sought after Diamond Oaks neighborhood on the edge of Dodgeville. This beautiful home will have a very modern look with black windows/soffit, slate siding, cedar garage beam/front porch post. full finished basement with bed,bath, walk out patio, potential for 5th bed/office,family room 52 feet long. main level boasts open concept kitchen/living area w/vaulted ceiling, MB suite w/walk in tiled shower, large walk in closet, quartz counters. Dream kitchen feat: new modern white glass appliances, Amish built in white shaker cabinets with soft close, roll outs,built in oven/microwave,separate gas cook top/hood, wine rack, pantry, black quartz counters, LVP floors, deck. Gonna be a must see!
-
4BEDS
-
0.44ACRES
-
3BATHS
-
01/2 BATHS
-
3,133SQFT
-
$0$/SQFT
School Information
Description
Expected completion date 3-1-25. new 4 bed, 3 bath home currently under construction in the quiet, highly sought after Diamond Oaks neighborhood on the edge of Dodgeville. This beautiful home will have a very modern look with black windows/soffit, slate siding, cedar garage beam/front porch post. full finished basement with bed,bath, walk out patio, potential for 5th bed/office,family room 52 feet long. main level boasts open concept kitchen/living area w/vaulted ceiling, MB suite w/walk in tiled shower, large walk in closet, quartz counters. Dream kitchen feat: new modern white glass appliances, Amish built in white shaker cabinets with soft close, roll outs,built in oven/microwave,separate gas cook top/hood, wine rack, pantry, black quartz counters, LVP floors, deck. Gonna be a must see!
© 2026 South Central Wisconsin MLS Corporation. All rights reserved. IDX information is provided exclusively for consumers' personal, non-commercial use and may not be used for any purpose other than to identify prospective properties consumers may be interested in purchasing. Information is deemed reliable but is not guaranteed accurate by the MLS or Klodowski Real Estate. Data last updated: 2026-02-09T08:41:18.22.
