Description
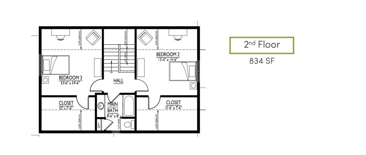
Under construction; est compl 4/18/25. Welcome to Calliope Cottages at Redtail Ridge"featuring Middleton Schools! Open concept home features great room with fireplace & additional flex area. Kitchen includes quartz countertops, granite sink, tile backsplash, stainless appliances & pantry. First floor owner's suite with walk-in closet and private bath with tile shower & dual sinks. 2 upper level bedrooms with huge closets! 10yr builder's limited warranty & 15yr dry basement warranty included! Condo fee includes private road, driveway & sidewalk snow removal, lawn care, liability insurance, officer & director coverage, and third party manager. Radon mitigation system is passive. For floor plan & design selection information, please call or email agent. Photos & tour are of a similar model
-
3BEDS
-
N/AACRES
-
2BATHS
-
11/2 BATHS
-
1,995SQFT
-
$0$/SQFT
School Information
Description
Under construction; est compl 4/18/25. Welcome to Calliope Cottages at Redtail Ridge"featuring Middleton Schools! Open concept home features great room with fireplace & additional flex area. Kitchen includes quartz countertops, granite sink, tile backsplash, stainless appliances & pantry. First floor owner's suite with walk-in closet and private bath with tile shower & dual sinks. 2 upper level bedrooms with huge closets! 10yr builder's limited warranty & 15yr dry basement warranty included! Condo fee includes private road, driveway & sidewalk snow removal, lawn care, liability insurance, officer & director coverage, and third party manager. Radon mitigation system is passive. For floor plan & design selection information, please call or email agent. Photos & tour are of a similar model
© 2025 South Central Wisconsin MLS Corporation. All rights reserved. IDX information is provided exclusively for consumers' personal, non-commercial use and may not be used for any purpose other than to identify prospective properties consumers may be interested in purchasing. Information is deemed reliable but is not guaranteed accurate by the MLS or Klodowski Real Estate. Data last updated: 2025-12-10T23:41:20.62.
