Description
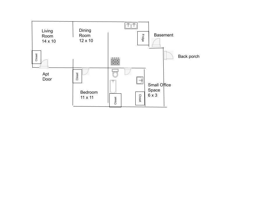
Located in the heart of Madison’s highly sought-after Willy Street neighborhood, 804 Jenifer Street is a rare 7-unit investment opportunity with strong upside. The property features rents below market, offering immediate value-add potential for a new owner, while boasting a history of zero vacancies, a testament to tenant demand and location. The property offers lake views, along with walkable access to Willy Street’s vibrant mix of local restaurants, cafes, shops, parks, and Lake Monona. With stable in-place income, proven occupancy, and significant rent growth potential, this property is ideal for investors seeking long-term appreciation and dependable cash flow in a premier neighborhood. Property Sold As-Is.
-
0BEDS
-
0.1ACRES
-
0BATHS
-
01/2 BATHS
School Information
Description
Located in the heart of Madison’s highly sought-after Willy Street neighborhood, 804 Jenifer Street is a rare 7-unit investment opportunity with strong upside. The property features rents below market, offering immediate value-add potential for a new owner, while boasting a history of zero vacancies, a testament to tenant demand and location. The property offers lake views, along with walkable access to Willy Street’s vibrant mix of local restaurants, cafes, shops, parks, and Lake Monona. With stable in-place income, proven occupancy, and significant rent growth potential, this property is ideal for investors seeking long-term appreciation and dependable cash flow in a premier neighborhood. Property Sold As-Is.
© 2026 South Central Wisconsin MLS Corporation. All rights reserved. IDX information is provided exclusively for consumers' personal, non-commercial use and may not be used for any purpose other than to identify prospective properties consumers may be interested in purchasing. Information is deemed reliable but is not guaranteed accurate by the MLS or Klodowski Real Estate. Data last updated: 2026-02-08T23:41:16.49.
